


空心桨叶干燥机广泛应用于石油化工、颜料、农药、污泥等行业中滤饼状、浆液状、水分较高物料的干燥。因该设备干燥所需要的热量依靠热传导间接加热,干燥过程不需或只需少量气体以带走湿份,提高了热量利用率。对于需要…
0519-88728688 
空心桨叶干燥机是一种以热传导为主的卧式搅拌型连续干燥设备。因搅拌叶片形似船桨,故称桨叶干燥机,国外也称槽型干燥机或搅拌干燥机。设备干燥所需要的热量依靠热传导间接加热,因此干燥过程不需或只需少量气体以带走湿份。极大地减少了被气流带走的这部分热量损失,提高了热量利用率,是一种节能型干燥设备。 桨叶干燥机广泛应用于石油化工、化工、冶金、食品、医药、农药等行业中粉状、粒状、滤饼状、浆液状物料的干燥。
空心桨叶干燥机是江苏和诚在消化吸收国外桨叶干燥机先进技术的基础上设计和制作的。KJG系列空心桨叶干燥机技术(日本奈良Nara公司称之为NPD),^早是在德国发明,后被日本引进并改良,其中日本株式会社奈良机械制作所得产品^有代表性。我公司工程师出国学习及测绘了日本奈良Nara-NPD系列和荷兰GPD系列的空心桨叶干燥成套设备,借鉴其先进结构,开发了一套KJG-13的中试设备,完成了众多客户大生产前的摸索工艺参数试验。在多年的生产和调试过程中,积累了丰富的经验,并对桨叶干燥机的结构进行了多次改进,使该产品变得更实用和性能稳定。
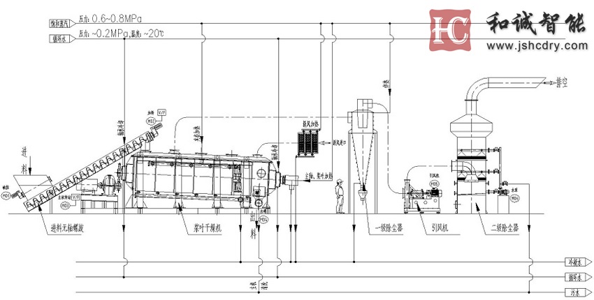
空心桨叶干燥机由带夹套的端面呈W型壳体、上盖、两根有叶片的中空轴、两端的端盖、通有介质的旋转接头、金属软管以及包括齿轮、链轮的传动机构等部件组成。
干燥机的核心是两根空心轴和焊在轴上的空心搅拌桨叶。桨叶形状为楔形的空心半圆形,可以通入加热介质。除了起搅拌作用外,也是设备的的传热体。桨叶的两主要传热侧面成斜面,因此当物料与斜面接触时,随着叶片的旋转,颗粒很快就从斜面滑开,使传热表面不断更新,强化了传热。在桨叶的三角形底部设有刮板,以将沉积于壳底的物料刮起,防止产生死角。
桨叶的排布和各部位尺寸均有一定要求,而且在进料区、干燥区、排料区除桨叶外,另设有辅助机构,以保证整机操作稳定,干燥均匀。此外,停留时间亦可调节。
(1) 热量利用率高。干燥机采用传导加热方式进行加热,干燥所需热量不是靠热气体提供,减少了热气体带走的热量损失;由于设备结构紧凑,且辅助装置少,散热损失也减少,热量利用率可达90%;
(2) 设备结构紧凑,装置占地面积小。干化所需热量主要是由密集地排列在空心轴上的许多空心桨叶壁面提供,而夹套壁面的传热量只占少部分。所以单位体积设备的传热面大,可节省设备占地面积,减少基建投资;
(3) 能够处理的材料的范围很广:热敏性材料和高温处理材料都可以使用不同的加热介质进行干燥。常见的加热介质有:蒸汽,热油,热水和冷水;它可能是连续或间歇操作,被广泛应用于许多领域。
(4) 蒸汽与污泥不接触,蒸汽冷凝后可回用,充分节约能源;
(5) 空心桨叶干燥机由于具有较大的扭矩,因此可以有效克服物料塑性阶段所带来的阻力,使物料干化到含水率40%以下而不需返混,降低了系统的复杂性;
(6) 空心桨叶干燥机旋转速度很慢,转动速度小于4 r/min,可有效防止造成干燥机壁面的磨损。
桨叶干燥机已成功地用于食品、化工、石化、染料、工业污泥等领域。设备传热、冷却、搅拌的特性使之可以完成以下单元操作:煅烧(低温)、冷却、干燥(溶剂回收)、加热(融化)、反应和灭菌。
(1) 用导热油做热介质,桨叶干燥机可完成低温煅烧工作。如:二水硫酸钙(Ca2SO4·2H2O) 煅烧转化为半水硫酸钙(Ca2SO4·1/2H2O)。碳酸氢钠(NaHCO3)经煅烧 转化为纯碱(Na2CO3)等。
(2) 通入冷却介质,如水、冷却盐水等即可用来冷却。如:使用于纯碱行业的桨叶式凉碱机,取代老式的空气冷却凉碱机,节省了能源及尾气处理设备,降低了操作费用 ,还可用于钛白粉、镍铁合金粉及各种粉粒状物料的冷却。在单台机里可以将物料从1000℃冷却到小于40℃。
(3) 干燥,设备^主要的功能,不使用热空气,使溶剂回收、能源消耗、环境控制处于易处理的理想状态。对需回收溶剂、易燃、易氧化、热敏性物料尤为适应。已广泛用于精细化工、石化、染料行业。
(4) 轴向区间内,温度、湿度、混合度的均匀性,使得设备可用来加热或融化,或进行一些固体物料反应。在复合肥及变性淀粉行业均已成功使用。 桨叶干燥机可用来对食物和面粉进行灭菌处理。单位有效容积内大的加热面积,很快就将物料加热到灭菌温度,避免了长时间加热而改变物料品质。














和诚智能装备开发的密闭式桨叶干燥机在钢帘线企业重金属污泥干化中的成功应用,不仅可降低污泥的含…
捷报迎春,骏马腾蹄!2026年春节复工伊始,江苏和诚智能以“一马当先”之势迎来新春发展开门红,成…
继四川某企业采购新型除草剂草铵膦专用干燥机并成功运行后,在农化行业里迅速发酵扩散。多家农药企…
截屏,识别二维码
和诚智能