


信息来源:本站 | 发布日期: 2024-06-12 16:46:35 | 浏览量:1179
摘要:
和诚智能装备开发的密闭式桨叶干燥机在钢帘线企业重金属污泥干化中的成功应用,不仅可降低污泥的含水率,实现了污泥体积的大幅度缩减,节约污泥的堆放空间,减少了污泥的输送量,进一步满足重金属污泥的资源化要需求,节省成本,投资回收期短。同时,二次污染容易控制,安全可靠。所以,对于实现钢帘线企业重金属污泥的减量化、稳定化和资源化,桨叶干燥机是一种较理想的重金属污泥干化设备。
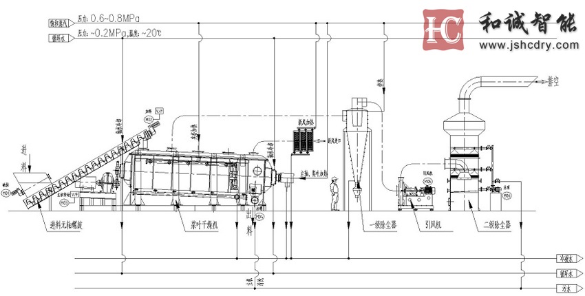
桨叶干燥机以蒸汽、热水或导热油作为加热介质轴端装有热介质导入导出的旋转接头。加热介质分为两路,分别进入干燥机壳体夹套和桨叶轴内腔将器身和桨叶轴同时加热,以传导加热的方式对湿物料进行加热干燥,被干燥的湿物料由螺旋送料机定量地连续送入干燥机的加料口,湿物料进入器身后,通过桨叶的转动使污泥翻转、搅拌,不断更新加热介面,与器身和桨叶接触,被充分加热,使污泥所含的表面水分蒸发。同时湿物料随桨叶轴的旋转成螺旋轨迹向出料口方向输送,在输送中继续搅拌,使湿物料中渗出的水分继续蒸发,zui后干燥均匀的合格产品由出料口排出。
(1) 进料和出料
用进料螺旋输送机将板框压滤机脱水后含水率在75%~80%的污泥送至烘干机的进料口,湿污泥经干燥机干燥后通过出料螺旋输送机输送至料仓。
(2) 加热
使用蒸汽作交换的热源,蒸汽温度为150~160℃,蒸汽被分别引入中空的烘干机壳体和传动的轴、桨叶等所有与污泥接触进行热交换的加热金属表面。
(3) 污泥干燥
加热后的金属表面与湿污泥均匀接触,加热污泥并蒸发污泥中的水分。沿烘干机的轴向长度,水蒸气蒸发会经历恒定蒸发和低蒸发率两个阶段,污泥的温度则呈快速上升一稳定一快速上升的趋势,污泥经塑化、破塑、块化、颗粒化4个步骤后达到所需烘干标准。
(4) 废气处理
污泥干燥废气采用喷淋塔处理,使所排放的废气达到除尘、除臭效果,符合环保所需排放要求。
(1) 进出泥质
污泥含水率由75%~85%降至10%~30%,污泥量由30t/d减至10t/d左右,体积缩小到25%,大幅度减少了污泥体积,实现了污泥的减量化。同时,污泥湿基含铜率由原来不足2%升高到3%~5%,提高了污泥出厂的湿基含率。
(2) 二次污染控制
干燥机里的物料里含有水分、脂类、硫化物等多种不同物质,在热干化过程中,这些不同的物质沸点不同,随着温度的变化而成为固态或气态,因此不可避免的会产生二次污染,不但产生废液,而且产生少量影响环境的气体。
污泥干化所产生的尾气均用管道密封收集,通过喷淋塔将尾气进行处理。高温尾气进入喷淋塔后,经喷淋清洗,水蒸气冷却形成冷凝水,粉尘、硫化氢等其它污染杂物则被喷淋液捕捉、吸收后形成废液,和热干化过程中产生的冷凝水一起排入现有污水厂处理达标后排放。净化后的达标尾气排入大气,有效控制二次污染。
(1) 能耗
双浆叶式干燥机按加热介质可分为蒸汽型、导热油型和热(冷)水型。不管采用哪种加热介质,均是在两根空心轴和空心浆叶内通入导热介质,不同在于不同的介质需要配置相对应的旋转接头,蒸汽流动路线是上进下出,导热油型和热(冷)水型流动路线则为下进上出。能耗因加热介质不同而不同,本项目因厂内有蒸汽供应,为充分利用原有资源,节省成本,采用蒸汽作为加热介质。本工程实际运行中,选用压力0.7Mpa过热蒸汽,据长期统计,每天干化污泥蒸汽耗量约为30吨。
(2) 成本
根据每天处理板框压滤机脱水后污泥平均30吨,干化一吨原污泥的蒸汽大约在1000kg左右,每吨蒸汽按目前收费180元计算,则热能成本为:1000kg×0.18元/kg=180元
日处理量为3Ot/d的烘干机,每小时处理量为1.5t,烘干机用电量为90kw/h,可变频。整套烘干系统总功率为110kw,除烘干机外所需功率为110-90=20kw,运行时间约为22小时,每吨总耗电成本约为:(1÷1.5×90+20×22÷30)×0.8=60元则每吨湿污泥处理成本约为:180+60=240元
(3) 投资回收期
污泥烘干前外运费为2000元/吨,则烘干后每天节省成本:(30-10)×2000-240×30=3.28元/天
(4) 本工程污泥干化项目总投资为130万元,因此投资回收期为:130÷3.28=39.6天,取整需要40天
捷报迎春,骏马腾蹄!2026年春节复工伊始,江苏和诚智能以“一马当先”之势迎来新春发展开门红,成…
继四川某企业采购新型除草剂草铵膦专用干燥机并成功运行后,在农化行业里迅速发酵扩散。多家农药企…
近日,江苏和诚智能装备技术部传来重磅消息,公司自主研发的年产千吨级碳纳米管钛材高温闪蒸干燥机…
截屏,识别二维码
和诚智能