


电镀污泥桨叶干燥机及高效的尾气处理装置,经众多的客户实际运用后,充足证明能满足生化污泥的干燥要求,整机运行稳定、搅拌均匀、热效率高、干燥效果好,而且能耗低,操作费用小。
0519-88728688 
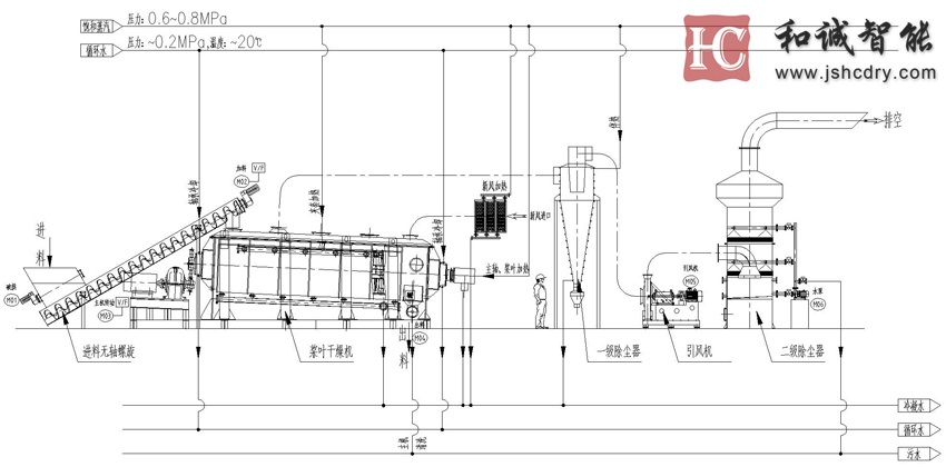
空心桨叶干燥机传热面有叶片、搅拌轴、壁面等几部分,而且叶片的传热面积占很大一部分,所以设备结构紧凑,单位容积传热面积大。另外,搅拌、混合使污泥剧烈翻动,从而获得很高的传热系数,因此占地面积和空间都很小,节省了厂房基建费用。干燥过程气体用量少,流速低,被气体带走的粉尘量少,所以干燥后气体粉尘回收方便,回收设备体积小,可以节省省设备投资。
桨叶干燥机的核心是两根空心轴和焊在轴上的空心搅拌桨叶。桨叶形状为楔形的空心半圆形,可以通入加热介质。除了起搅拌作用外,也是设备的的传热体。桨叶的两主要传热侧面成斜面,因此当物料与斜面接触时,随着叶片的旋转,颗粒很快就从斜面滑开,使传热表面不断更新,强化了传热。在桨叶的三角形底部设有刮板,以将沉积于壳底的物料刮起,防止产生死角。
(1) 蒸汽与污泥不接触,蒸汽冷凝后可回用,充分节约能源;
(2) 空心桨叶式干燥机由于具有较大的扭矩,因此可以有效克服污泥塑性阶段所带来的阻力,使污泥干化到含水率40%以下而不需返混,降低了系统的复杂性;
(3) 空心桨叶式干燥机旋转速度很慢,转动速度小于4 r/min,可有效防止造成干燥机壁面的磨损;
(4) 热量利用率高。污泥干燥机采用传导加热方式进行加热,干化所需热量不是靠热气体提供,减少了热气体带走的热量损失;由于设备结构紧凑,且辅助装置少,散热损失也减少,热量利用率可达90%;
(5) 设备结构紧凑,装置占地面积小。干化所需热量主要是由密集地排列在空心轴上的许多空心桨叶壁面提供,而夹套壁面的传热量只占少部分。所以单位体积设备的传热面大,可节省设备占地面积,减少基建投资;
(6) 楔形桨叶具有自净能力,可提高桨叶传热作用。旋转桨叶的倾斜面和污泥颗粒或粉末层的联合运动所产生的分散力,使附着于加热斜面上的污泥易于自动地清除,使桨叶保持着高效的传热功能。另外,由于两轴桨叶反向旋转,交替地分段压缩(在两轴桨叶斜面相距^近时)和膨胀(在两轴桨叶斜面相距^晚时)斜面上的污泥,使传热面附近的污泥被激烈搅动,提高了传热效果;
(7) 可适应污泥含水率变化,产品干化均匀性高。干燥机内设溢流堰,可根据污泥性质和干化要求改变溢流堰高度,调节干燥机内污泥滞留量。可使干燥机内污泥滞留量达筒体容积的70-80%,增加污泥的停留时间。此外,还可调节加料速度、轴的转速和热载体温度等,在几分钟与几小时之间任意选定停留时间。因此对污泥含水率变化的适应性非常广泛。
(8) 空心桨叶对污泥有破碎和搅拌作用,污泥在干化后可以自然形成颗粒。污泥在桨叶的搅拌作用下,使污泥在干燥机内从加料口向出料口流动过程中充分混合均匀,产品干化均匀。




和诚智能装备开发的密闭式桨叶干燥机在钢帘线企业重金属污泥干化中的成功应用,不仅可降低污泥的含…
捷报迎春,骏马腾蹄!2026年春节复工伊始,江苏和诚智能以“一马当先”之势迎来新春发展开门红,成…
继四川某企业采购新型除草剂草铵膦专用干燥机并成功运行后,在农化行业里迅速发酵扩散。多家农药企…
截屏,识别二维码
和诚智能