


和诚智能设计制造的锂离子电池材料专用重载型双锥真空干燥机,在高镍三元811的生产中异物引入量大大降低,成功解决了锂离子电池高镍三元材料磁性异物引入量高、干燥不均匀、分散性差、易团聚等问题,有利于锂离子电池材料的工业化生产。
0519-88728688 
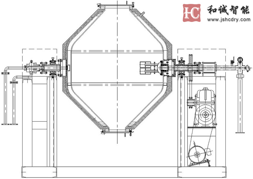
双锥回转真空干燥机为双锥形的回转罐体,罐内在真空状态下,向夹套内通入蒸汽或热水进行加热,热量通过罐体内壁与湿物料接触,湿物料吸热后蒸发的水汽,通过真空泵经真空排气管被抽走。由于罐体内处于真空状态,且罐体的回转使物料不断的上下内外翻动,故加快了物料的干燥速度,提高干燥效率,达到均匀干燥的目的。双锥回转真空干燥机系统主要由双锥回转真空干燥机、冷凝器、除尘器、真空抽气系统、加热系统、冷却系统、电控系统等组成。
双锥回转真空干燥机是集混合、真空干燥于一体的干燥设备。真空干燥的过程就是将被干燥物料置于密封的筒体内,用真空系统抽真空的同时对被干燥物料不断加热,使物料内部的水分通过压力差或浓度差扩散到表面,水分子(或其他不凝气体)在物料表面获得足够的动能,在克服分子间的相互吸引力后扩散到真空室的低压空间,被真空泵抽走而完成与固体的分离。所以,双锥回转真空干燥机表现为一下特性:
(1) 真空干燥的过程中,筒体内的压力始终低于大气压力,气体分子数少,密度低,含氧量低,因而能干燥容易氧化的药品,减少物料染菌的机会。
(2) 由于湿分在汽化过程中温度与蒸汽压力成正比,故真空干燥时,物料中的湿分在低温下就能汽化,达到低温干燥,特别适用于有热敏性物料的药品生产。
(3) 真空干燥可消除常压热风干燥易产生的表面硬化现象,这是因为真空干燥物料内和表面之间压差大,在压力梯度作用下,水分很快移向表面,不会出现表面硬化。
(4) 由于真空干燥时,物料内和外部之间温度梯度小,由于逆渗透作用使得湿分能够独自移动并收集,有效克服热风干燥所产生的失散现象。
(1) 同一批物料通过双锥真空干燥机进行烘干时,磁性异物引入量远远低于闪蒸干燥与盘式干燥等传统干燥方式,在电池制备过程中,提高了电池的安全性能。
(2) 锂离子电池高镍三元811滤饼经双锥真空干燥后其化学成分未发生变化,其分散性及产品一致性优于同属于静态干燥的烘箱干燥。
(3) 采用双锥真空干燥的锂离子电池高镍三元811的筛上物含量低于闪蒸干燥、盘式干燥及烘箱干燥,产品一次成品率^优。
(4) 烘干同一批物料,双锥真空干燥消耗的能耗低于其他传统干燥方式,如闪蒸干燥、盘式干燥及烘箱干燥,降低了生产成本,提高了劳动效率。
(1) 常规双锥干燥机的抽真空头为单头且不随罐体旋转,由于抽真空头一般较重和在安装时真空管与旋转轴不同心的原因,往往造成真空管与罐体自臂座间的密封填料磨损过快,造成间隙过大,少量物料进入罐体自臂座,且与碳钢部分接触,若物料被铁离子污染,会在下一批物料干燥时被真空抽入罐内造成一批物料的报废,后果极其严重。同时物料进入罐体自臂座内还会造成真空管磨损及管端密封部件(旋转接头或机封)的损坏。
我单位工程技术人员针对此缺点通过技术攻关,采用新型结构解决了这个技术难点。设计了:装有真空头的抽真空管与罐体同步旋转的先进技术,这样避免了其他厂家设备因筒体与真空管的磨损而导致产品被残余物料或密封圈磨损物料污染的弊病。在众多企业使用后,^的效果得到广泛的好评,被认为是目前国内解决这一问题的^好^有效的措施。
(1) 真空过滤装置,该过滤装置设计成三套滤芯,保证足够的过滤面积。
与锥体中心线水平安装,滤芯采用五层SUS304不锈钢烧结网制成,过滤精度达10um。
(2) 筒体两端密封均采用耐高温的旋转接头,采用球面石墨密封技术进行密封,改变了以往填料密封容易磨损而漏真空、漏水的不良现象。
(3) 可升降传动电机的安装高度
由于本设备设计了电机活动支架,能够确保在皮带长时间运行后有变形、松动的情况下,通过调整电机活动支架来调节皮带的^佳张紧度。
(4) 减速机输出链轮与传动链轮采用双排两条进行传动,并且设计了链条张紧机构,确保链条紧配。避免链条松动时,罐体运动时有滑动现象、对轴有较大扭力易损坏设备的现象发生。
(5) 设备采用变频调速的方式,使设备启动平稳,电机电流不过大,延长设备寿命。
(6) 采用洁净型进料人孔盖,既能保证开关方便,又能保证洁净和平整密封;人孔盖与桶体密封采用耐温耐压的硅橡胶材料;出料口为涡轮蜗杆结构的真空蝶阀,不仅可以确保罐内真空度,而且可以调节出料时的流量,蝶阀短接加设快装闷盖,保证设备使用时的真空度。
(7) 干燥器内胆 、夹套和轴套焊接成一体后,经大型镗床对轴套对面平面度及筒体的同心度进行镗孔加工,以保证两端主轴的径向跳动不超过0.2mm。
(8) 设计了先进的温度测量与控制装置
将温度探头伸进罐内并真正测量到物料本身的温度,解决了其他厂家将温度探头设置在真空管上,测量抽真空空气的温度而导致该温度与罐内物料实际温差较大的问题;同时,在罐体上还设有独特的测量物料真实温度的温度表,以校正两个温度点的误差,更加^的控制好物料温度,以避免一些热敏物料受高温烘干而变质变性等问题的发生;
(9) 在系统压力测量方面,除了在真空管路上设有真空表显示系统压力外,还在罐体上设置了隔膜式真空表,以反映的罐内真空度,这样可以防止系统“假真空”现象的发生,并防止一些意外事故发生。
(10) 为了防止一些粉体物料烘干过程中真空罩堵塞,系统设有氮气反吹系统。
在烘干过程中进行不定时的反吹真空罩,以确保抽气顺畅,加快干燥,而且在干燥末期,反吹入氮气能置换罐内的湿空气,使罐内的临界水分降低,以满足干燥水分要求高的要求。
和诚智能设计制造的锂离子电池材料专用重载型双锥真空干燥机,在高镍三元811的生产中异物引入量大大降低,成功解决了锂离子电池高镍三元材料磁性异物引入量高、干燥不均匀、分散性差、易团聚等问题,有利于锂离子电池材料的工业化生产。





在选矿药剂黄药生产领域,江苏和诚智能装备的单锥干燥机凭借其厚积薄发的技术优势,为行业带来了全…
捷报迎春,骏马腾蹄!2026年春节复工伊始,江苏和诚智能以“一马当先”之势迎来新春发展开门红,成…
继四川某企业采购新型除草剂草铵膦专用干燥机并成功运行后,在农化行业里迅速发酵扩散。多家农药企…
截屏,识别二维码
和诚智能